top of page
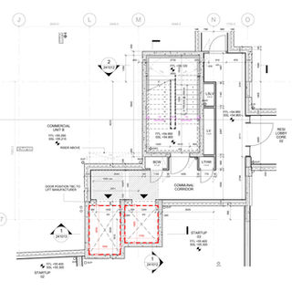
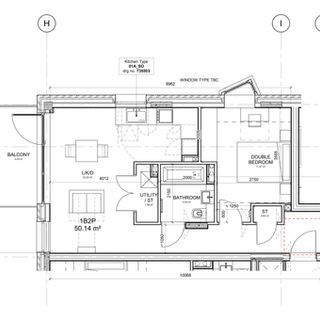
Revit Documentation:
We specialise in providing high-quality Revit Documentation, ensuring precision and clarity in every detail. Our services also include comprehensive planning and building regulation drawings to support projects effectively. Trust us to deliver solutions tailored to meet your needs in the construction and design industry.

bottom of page











